
Tenoning Unit
Circular Saw Unit
Workpiece Clamping
Command Panel

Tenoning Unit
Circular Saw Unit
Workpiece Clamping
Command Panel
wood cutting
wood tenoning
Elite 400 is a tenoning machine complete with a blade unit and a vertical tenoning spindle.
Futura Woodmac offers 2 models of tenoning machines: while the saw unit remains unchanged for both models, the tenoning unit can be ordered with a fixed vertical shaft (without tool release), but with a vertical stroke under the 90 mm work surface, or with a Hiteco electric spindle with rapid shaft release.
Entirely overhauled design to provide customers with maximum protection, applying all the safety features required by law, and to market a product with modern mechanics.
TWO DIFFERENT VERSIONS
Modular machine with fixed spindle, with tool change by means of a ring nut, or with an electrical spindle with HSK 63B rapid spindle change system.
CIRCULAR SAW UNIT
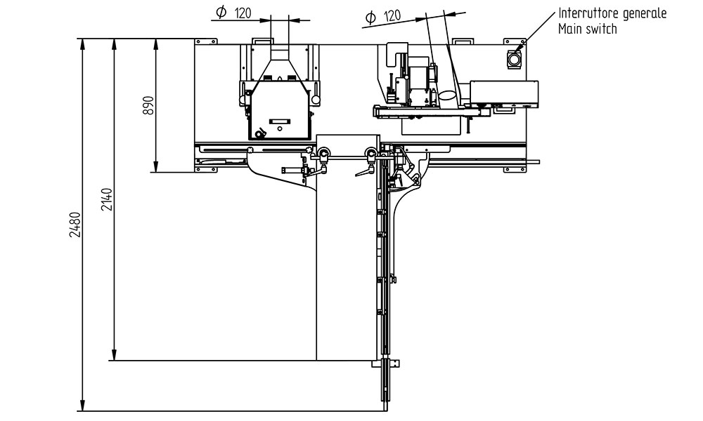
Blade diameter with 400 mm standard, 450 mm optional.
Motor power kW 3
POSITIONING VIA REVOLVER
Extremely fast retractable work counters.
MODERN MECHANICS
All movements are on linear rails and recirculating ball bearings.
IN COMPLIANCE WITH EU REGULATIONS
Machine manufactured in strict compliance with current regulations.
IN-HOUSE PRODUCTION
The tenoning machine is 100% Made in Italy, with a large part (the machine body and some of its parts) produced in-house.
This is thanks to the partnership between Futura Woodmac and Metalstar 2000, which commits its sheet metal laser cutting, welding and CNC machinery departments to production.
In the Elite 400 E version, the machine comes complete with a HITECO electric spindle for rapid shaft change using the HSK 63B system, and with 4 spindles supplied.
Vertical stroke of 90 mm under the work surface with readable measurement on the mechanical readout.
Motor power 7.5 kW.
In the Elite 400 version, the machine comes complete with a spindle with a tool change system by means of a ring nut; its 90 mm reach under the work surface allows the housing of a variety of tools for quick work change.
Vertical positioning readable on the mechanical display.
Circular saw with a rotation speed of 2800 rpm.
The maximum permissible cutting height is 120 mm, with transverse movement, again of 120 mm.
A 5-position revolver is provided for quick setting.
Positioning of the work surface in relation to the tool diameter by means of a 5-position revolver, the unit is moved on linear guides and recirculating ball bearings.
Work rail tiltable to +/- 45 degrees.
Wood clamping takes place by means of 2 vertical cylinders and 1 horizontal cylinder, so that workpieces up to 400 mm wide can be machined or two identical workpieces can be tenoned simultaneously for considerable time savings.
Offices: COMMERCIAL – SPARE PARTS – ADMINISTRATION
Figure 1
ELITE 400 (OVERVIEW)
Figure 2
ELITE 400 (FRONT PLAN)
Figure 3
ELITE 400 (PLAN FROM ABOVE)
| ELITE 400 | ELITE 400 E | |
|---|---|---|
| Standard spindle | Standard | – |
| HITECO Electrospindle | – | Standard |
| Shaft diameter | 40 or 50 mm | 40 or 50 mm |
| Max tool diameter | 360 mm | 360 mm |
| Stroke under the working table | 90 mm | 90 mm |
| Speed rotation | 3600 rpm | 3600 rpm |
| Motor power | 7,5 kW | 7,5 kW |
| Fast tool change | Ghiera | HSK 63B |
| Shaft included | – | nr. 4 |
| ELITE 400 | ELITE 400 E | |
|---|---|---|
| Max blade diameter | 400 mm Standard (450 mm Optional) | 400 mm Standard (450 mm Optional) |
| Max cut height | 120 mm | 120 mm |
| Speed rotation | 2800 rpm | 2800 rpm |
| Motor power | 3 kW | 3 kW |
| ELITE 400 | ELITE 400 E | |
|---|---|---|
| Guide tilting | +/- 45° | +/- 45° |
| Manual rotating chipbreaker for 90° machining | Standard | Standard |
| Pneumatic workpiece clamping by vertical pressers | no. 2 | no. 2 |
| Pneumatic workpiece clamping by horizontal presser | no. 1 | no. 1 |